壓力平衡閥
丁寶勤 13906276368(技術)
電話:0513-88400999 傳真:0513-88400998 郵箱:jszk@vip.163.com
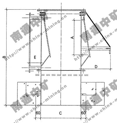
壓力平衡閥采用優質碳素鋼制成,用來平衡庫內外壓力,其庫內氣體卸出壓力可由閥門的重錘來決定。
Pressure balance valve is made from excellent carbon steel to balance the pressure inside and outside silo. Discharge pressure in silo is decided by the hammer of valve.

壓力平衡閥規格 | A | B | C | D | E |
100×100 | 100 | 710 | 210 | 100 | 100 |
220×220 | 220 | 881 | 310 | 220 | 150 |
450×450 | 450 | 1116 | 510 | 450 | 150 |

上一頁:回轉式空氣分配器
下一頁:均化庫庫側檢修門










